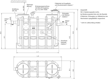
Fettabscheider LipuJet-P-OD Ausbaustufe 1
Produktvorteile
- Strukturelle Stabilität des Behälters mit Standsicherheitsnachweis von 25 Jahren
- Minimierung der Entsorgungs- und Wartungskosten durch wirtschaftliche Nenngrößenabstufungen
- Direktentleerung ohne Geruchsbildung
- Geruchsdichte Abdeckung
- Optimales Einbringmaß
- Geringes Gewicht
Produktinformationen
- Fettabscheideranlage gemäß ÖNORM EN 1825 und DIN 4040‑100
- Zum Einbau in Räumen – frostfrei
- Mit integriertem Schlammfang
- Bedienseite: rechts/links
- Entleerungsanschluss, Storz-B-Kupplung R 2½"
- Absaug- und Entleerungssumpf mit Grundablassmuffe R 1"
- Geruchsdichte Wartungsöffnung, Durchmesser: 450 mm
Fettschichtdicken-Messgerät
Passend für
- LipuJet-P
- Oval NS 1 – 10
- Rund NS 2 – 22,5
- LipuJet-S
- Oval NS 1 – 10
- Rund NS 2 – 20
- LipuSmart-P
- Oval NS 1 – 10
Beschreibung
- Zur elektronischen Messung der Fettschicht
- Geeignet für flüssige und/oder aushärtende Fette
- Auswertegerät mit steckerfertigem Anschlusskabel, Länge: 3 m
- Mit zwei potentialfreien Wechslerkontakten zur Anzeige Vollmeldung (80%) u. der Vorwarnung des Vollzustandes (50%)
- Mit optischer Anzeige des Füllstandes
- Mit beheiztem Sondenstab zur Erhöhung der Betriebssicherheit
- Betriebsspannung: 230VAC/5 VA
- Schutzklasse: IP 54
- Leistung: ca. 12W
- Gewicht: 2,8 kg
Signalanlage mit GSM-Modul
Passend für
- Alle Fettabscheider
- Fettschichtdicken-Messgerät
- Vorbehälteranlage-duo
- Verfahrenstechnische Anlagen
- Fäkalien-Rückstauautomaten Quatrix-K Typ 3F
- Sinkamat-K (Unterflur) duo
- Muli-Hebeanlagen
- Pumpstationen
- Einbausets
Beschreibung
- Parametrisierbar per App (Android & iOs)
- Netzunabhängiger Alarm per 12V Bleigel-Akku
- Optische und Akustische Alarmmeldung
- Frei konfigurierbare Eingänge
- 6 digitale mit LED- Zustandsanzeige
- 1 analoger
- 1 Alarmausgang 12 V
- Weiterleitung der Alarms per SMS auf Mobiltelefone
- Zur Montage außerhalb des Ex-Bereiches
- Gehäuse: 192 x 150(mit Kabelverschraubung) x 100 mm (BxHxT)
- Schutzarzt: IP54
- Betriebsspannung: 230 V/AC 50/60 Hz
- Gewicht: 2 kg
Kabelverlängerung GSM
Heizstab
Fülleinheit
Passend für
- Fettabscheider
- LipuJet-P-OB/OD/R/RD
- LipuSmart-P-OB/OD
- Biologische Abwasserbehandlung
- BioJet-P-OM/RM (NS 2-25)
Beschreibung
- Freier Auslauf gemäß DIN 1988 Teil 4
- Zum Anschluss ans Trinkwassernetz
- Mit DVGW/KIWA Zulassung und Schrägsitzventil R ¾"
- Druckminderer mit integrieten Schmutzfänger
- Gewicht: 3,5 kg
Anschlusskasten
Unterputzrahmen
Storzkupplung für Pendelgasleitungen
Anschlusskasten
Passend für
- Fettabscheider
- LipuMax-P-D/DM/DA
- LipuJet-P-OD/RD/SD/OM/OMP/RM/RMP
- LipuJet-S-OD/RD/SD/OM/OMP/RM/RMP
- Stärkeabscheider FapuMax-P-DA
- Leichtflüssigkeitsabscheider Coalisator-P
- LipuLift-P-D/-DA/-DAP
Beschreibung
- Für Entsorgungsanschluss DN 80
- Aus Edelstahl, Werkstoff 1.4301
- Ausführung "Aufputz"
- Türanschlag
- Wahlweise rechts oder links
- Tür abschließbar
- Abmessungen (Breite x Höhe x Tiefe): 370 x 330 x 250 mm
- Gewicht: 10,4 kg
Unterputzrahmen
Anschlusskasten
Passend für
- Fettabscheider
- Stärkeabscheider
- LipuLift-P-D/-DA/-DAP
Beschreibung
- Für Entsorgungsanschluss, Pendelgasleitung (bei Bedarf) und Fernbedienung
- Aus Edelstahl, Werkstoff 1.4301
- Ausführung "Aufputz"
- Frontseite glasgeperlt
- Tür abschließbar, Anschlag links
- Abmessungen B x H x T: 300 x 725 x 160 mm
- Gewicht: 10 kg
Unterputzrahmen
Schauglas
Probenahmetopf DN 100
Passend für
- Fettabscheider LipuJet-P/LipuSmart-P
- NS 1 – 4
- Stärkeabscheider FapuJet-P-OAP
- NS 0,5 – 1
- Leichtflüssigkeitsabscheider Coalisator-P
Beschreibung
- Zum Einbau in waagerechte Rohrleitungen DN 100 nach Abscheideranlagen
- Material: PE
- In runder Bauform, mit
- Muffendichtung (Werkstoff SBR) am Zulauf und Rohrspitzende am Ablauf
- Geruchdichter Wartungsöffnung DN 450
- Gewicht: 10,2 kg
Probenahmetopf DN 150
Passend für
- Fettabscheider LipuJet-P/LipuSmart-P
- NS 5,5 – 10
- Stärkeabscheider FapuJet-P-OAP
- NS 2
Beschreibung
- Zum Einbau in waagerechte Rohrleitungen DN 150 nach Abscheideranlagen
- Material: PE
- In runder Bauform, mit
- Muffendichtung (Werkstoff SBR) am Zulauf und Rohrspitzende am Ablauf
- Geruchdichter Wartungsöffnung DN 450
- Gewicht: 10,1 kg
Probenahmetopf DN 100
Passend für
- Fettabscheider LipuJet-P/LipuSmart-P
- NS 1 – 4
- Stärkeabscheider FapuJet-P-OAP
- NS 0,5 – 1
- Leichtflüssigkeitsabscheider Coalisator-P
Beschreibung
- Zum Einbau in senkrechte Rohrleitung DN 100 nach Abscheideranlagen
- Material: PE
- In runder Bauform, mit
- Muffendichtung (Werkstoff SBR) am Zulauf und Rohrspitzende am Ablauf
- Geruchdichter Wartungsöffnung DN 450
- Gewicht: 10,2 kg
Probenahmetopf DN 150
Passend für
- Fettabscheider LipuJet-P/LipuSmart-P
- NS 5,5 – 10
- Stärkeabscheider FapuJet-P-OAP
- NS 2
Beschreibung
- Zum Einbau in senkrechte Rohrleitung DN 150 nach Abscheideranlagen
- Material: PE
- In runder Bauform, mit
- Muffendichtung (Werkstoff SBR) am Zulauf und Rohrspitzende am Ablauf
- Geruchdichter Wartungsöffnung DN 450
- Gewicht: 10,1 kg
Grobfang DN 100
Passend für
- Fettabscheider LipuJet-P/LipuSmart-P
- NS 1 – 4
- Stärkeabscheider FapuJet-P-OAP
- NS 0,5 – 1
Beschreibung
- Zum Einbau in waagerechte Rohrleitungen DN 100 vor Abscheideranlagen
- Material: PE
- In runder Bauform, mit
- Muffendichtung (Werkstoff SBR) am Zulauf und Rohrspitzende am Ablauf
- Korb aus Edelstahl, Werkstoff 1.4571 zur Rückhaltung von Grobstoffen
- Geruchdichter Wartungsöffnung DN 450
- Gewicht: 9,7 kg
Grobfang DN 150
Passend für
- Fettabscheider LipuJet-P/LipuSmart-P
- NS 5,5 – 10
- Stärkeabscheider FapuJet-P-OAP
- NS 2
Beschreibung
- Zum Einbau in waagerechte Rohrleitungen DN 150 vor Abscheideranlagen
- Material: PE
- In runder Bauform, mit
- Muffendichtung (Werkstoff SBR) am Zulauf und Rohrspitzende am Ablauf
- Korb aus Edelstahl, Werkstoff 1.4571 zur Rückhaltung von Grobstoffen
- Geruchdichter Wartungsöffnung DN 450
- Gewicht: 12,6 kg
Absperrschieber
Absperrschieber
Flanschanschlussteil
Flanschanschlussteil
Zulauf-/Absperrschieber DN 100
Fettschichtdicken-Messgerät
Passend für
- LipuJet-P
- Oval NS 1 – 10
- Rund NS 2 – 22,5
- LipuJet-S
- Oval NS 1 – 10
- Rund NS 2 – 20
- LipuSmart-P
- Oval NS 1 – 10
Beschreibung
- Zur elektronischen Messung der Fettschicht
- Geeignet für flüssige und/oder aushärtende Fette
- Auswertegerät mit steckerfertigem Anschlusskabel, Länge: 3 m
- Mit zwei potentialfreien Wechslerkontakten zur Anzeige Vollmeldung (80%) u. der Vorwarnung des Vollzustandes (50%)
- Mit optischer Anzeige des Füllstandes
- Mit beheiztem Sondenstab zur Erhöhung der Betriebssicherheit
- Betriebsspannung: 230VAC/5 VA
- Schutzklasse: IP 54
- Leistung: ca. 12W
- Gewicht: 2,8 kg
Signalanlage mit GSM-Modul
Passend für
- Alle Fettabscheider
- Fettschichtdicken-Messgerät
- Vorbehälteranlage-duo
- Verfahrenstechnische Anlagen
- Fäkalien-Rückstauautomaten Quatrix-K Typ 3F
- Sinkamat-K (Unterflur) duo
- Muli-Hebeanlagen
- Pumpstationen
- Einbausets
Beschreibung
- Parametrisierbar per App (Android & iOs)
- Netzunabhängiger Alarm per 12V Bleigel-Akku
- Optische und Akustische Alarmmeldung
- Frei konfigurierbare Eingänge
- 6 digitale mit LED- Zustandsanzeige
- 1 analoger
- 1 Alarmausgang 12 V
- Weiterleitung der Alarms per SMS auf Mobiltelefone
- Zur Montage außerhalb des Ex-Bereiches
- Gehäuse: 192 x 150(mit Kabelverschraubung) x 100 mm (BxHxT)
- Schutzarzt: IP54
- Betriebsspannung: 230 V/AC 50/60 Hz
- Gewicht: 2 kg
Kabelverlängerung GSM
Heizstab
Fülleinheit
Passend für
- Fettabscheider
- LipuJet-P-OB/OD/R/RD
- LipuSmart-P-OB/OD
- Biologische Abwasserbehandlung
- BioJet-P-OM/RM (NS 2-25)
Beschreibung
- Freier Auslauf gemäß DIN 1988 Teil 4
- Zum Anschluss ans Trinkwassernetz
- Mit DVGW/KIWA Zulassung und Schrägsitzventil R ¾"
- Druckminderer mit integrieten Schmutzfänger
- Gewicht: 3,5 kg
Anschlusskasten
Unterputzrahmen
Storzkupplung für Pendelgasleitungen
Anschlusskasten
Passend für
- Fettabscheider
- LipuMax-P-D/DM/DA
- LipuJet-P-OD/RD/SD/OM/OMP/RM/RMP
- LipuJet-S-OD/RD/SD/OM/OMP/RM/RMP
- Stärkeabscheider FapuMax-P-DA
- Leichtflüssigkeitsabscheider Coalisator-P
- LipuLift-P-D/-DA/-DAP
Beschreibung
- Für Entsorgungsanschluss DN 80
- Aus Edelstahl, Werkstoff 1.4301
- Ausführung "Aufputz"
- Türanschlag
- Wahlweise rechts oder links
- Tür abschließbar
- Abmessungen (Breite x Höhe x Tiefe): 370 x 330 x 250 mm
- Gewicht: 10,4 kg
Unterputzrahmen
Anschlusskasten
Passend für
- Fettabscheider
- Stärkeabscheider
- LipuLift-P-D/-DA/-DAP
Beschreibung
- Für Entsorgungsanschluss, Pendelgasleitung (bei Bedarf) und Fernbedienung
- Aus Edelstahl, Werkstoff 1.4301
- Ausführung "Aufputz"
- Frontseite glasgeperlt
- Tür abschließbar, Anschlag links
- Abmessungen B x H x T: 300 x 725 x 160 mm
- Gewicht: 10 kg
Unterputzrahmen
Schauglas
Probenahmetopf DN 100
Passend für
- Fettabscheider LipuJet-P/LipuSmart-P
- NS 1 – 4
- Stärkeabscheider FapuJet-P-OAP
- NS 0,5 – 1
- Leichtflüssigkeitsabscheider Coalisator-P
Beschreibung
- Zum Einbau in waagerechte Rohrleitungen DN 100 nach Abscheideranlagen
- Material: PE
- In runder Bauform, mit
- Muffendichtung (Werkstoff SBR) am Zulauf und Rohrspitzende am Ablauf
- Geruchdichter Wartungsöffnung DN 450
- Gewicht: 10,2 kg
Probenahmetopf DN 150
Passend für
- Fettabscheider LipuJet-P/LipuSmart-P
- NS 5,5 – 10
- Stärkeabscheider FapuJet-P-OAP
- NS 2
Beschreibung
- Zum Einbau in waagerechte Rohrleitungen DN 150 nach Abscheideranlagen
- Material: PE
- In runder Bauform, mit
- Muffendichtung (Werkstoff SBR) am Zulauf und Rohrspitzende am Ablauf
- Geruchdichter Wartungsöffnung DN 450
- Gewicht: 10,1 kg
Probenahmetopf DN 100
Passend für
- Fettabscheider LipuJet-P/LipuSmart-P
- NS 1 – 4
- Stärkeabscheider FapuJet-P-OAP
- NS 0,5 – 1
- Leichtflüssigkeitsabscheider Coalisator-P
Beschreibung
- Zum Einbau in senkrechte Rohrleitung DN 100 nach Abscheideranlagen
- Material: PE
- In runder Bauform, mit
- Muffendichtung (Werkstoff SBR) am Zulauf und Rohrspitzende am Ablauf
- Geruchdichter Wartungsöffnung DN 450
- Gewicht: 10,2 kg
Probenahmetopf DN 150
Passend für
- Fettabscheider LipuJet-P/LipuSmart-P
- NS 5,5 – 10
- Stärkeabscheider FapuJet-P-OAP
- NS 2
Beschreibung
- Zum Einbau in senkrechte Rohrleitung DN 150 nach Abscheideranlagen
- Material: PE
- In runder Bauform, mit
- Muffendichtung (Werkstoff SBR) am Zulauf und Rohrspitzende am Ablauf
- Geruchdichter Wartungsöffnung DN 450
- Gewicht: 10,1 kg
Grobfang DN 100
Passend für
- Fettabscheider LipuJet-P/LipuSmart-P
- NS 1 – 4
- Stärkeabscheider FapuJet-P-OAP
- NS 0,5 – 1
Beschreibung
- Zum Einbau in waagerechte Rohrleitungen DN 100 vor Abscheideranlagen
- Material: PE
- In runder Bauform, mit
- Muffendichtung (Werkstoff SBR) am Zulauf und Rohrspitzende am Ablauf
- Korb aus Edelstahl, Werkstoff 1.4571 zur Rückhaltung von Grobstoffen
- Geruchdichter Wartungsöffnung DN 450
- Gewicht: 9,7 kg
Grobfang DN 150
Passend für
- Fettabscheider LipuJet-P/LipuSmart-P
- NS 5,5 – 10
- Stärkeabscheider FapuJet-P-OAP
- NS 2
Beschreibung
- Zum Einbau in waagerechte Rohrleitungen DN 150 vor Abscheideranlagen
- Material: PE
- In runder Bauform, mit
- Muffendichtung (Werkstoff SBR) am Zulauf und Rohrspitzende am Ablauf
- Korb aus Edelstahl, Werkstoff 1.4571 zur Rückhaltung von Grobstoffen
- Geruchdichter Wartungsöffnung DN 450
- Gewicht: 12,6 kg
Absperrschieber
Absperrschieber
Flanschanschlussteil
Flanschanschlussteil
Zulauf-/Absperrschieber DN 100


















