
Sedimentationsanlagen werden eingesetzt, um Oberflächenwasser von Sinkstoffen zu befreien und damit Versickerungsanlagen oder Regenwasserkanäle vor Versandung zu schützen. Die optimierten Sedimentationsanlagen ACO Sedismart G entsprechen nach DWA M 153 dem Typ D25 und erreichen durch einen Rotationseinsatz im Becken eine höhere Sedimentationswirksamkeit.
ACO Sedimentationsanlage Stormsed Vortex G
Produktvorteile
- Behälter aus glasfaserverstärktem Kunststoff
- Besondere Innenkonstruktion zur optimierten Sedimentation
- Hohe Festigkeit bei geringem Gewicht
- Optimale Zugänglichkeit für Wartung, Reinigung und Entsorgung
- Einfacher Einbau und geringer Platzbedarf
- Einteilige Konstruktion nach DWA-M 153 Typ D24
Einsatzzwecke:
- Schutz vor Versandung von Versickerungsanlagen und Regenwasserkanälen
- Zur verbesserten Sedimentation von Schlamm vor Abscheideranlagen
ACO Sedimentationsanlage Stormsed Vortex G
| Typ | Oberfläche (m²) | maximaler hydraulischerDurchfluss (l/s) | DB/OD Zu-und Ablauf (mm) | Maximal anschließbare Fläche (m²) | Einstieg Durchmesser (mm) |
|---|---|---|---|---|---|
| 1000 | 0,79 | 79 | 315 | Projektspezifische Bemessung empfehlenswert | 600 |
| 1200 | 1,13 | 79 | 315 | Projektspezifische Bemessung empfehlenswert | 600 |
| 1500 | 1,77 | 79 | 315 | Projektspezifische Bemessung empfehlenswert | 600 |
| 1800 | 2,54 | 79 | 315 | Projektspezifische Bemessung empfehlenswert | 600 |
| 2200 | 3,80 | 79 | 315 | Projektspezifische Bemessung empfehlenswert | 600 |
Übersicht der maximal anschließbaren Flächen zur Reinigung von AFS 63 nach Wirkungsgrad
bei Behandlung im Teil- und Vollstromverfahren nach DWA-A 102
Kategorie II Vollstrom | Kategorie III Vollstrom | Kategorie II Vollstrom | Kategorie III Vollstrom | |
| AFS 63 Belastung (kg/ha*a) | 580 | 760 | 580 | 760 |
| Wirkungsgrad (gemittelt) | 47 % | 63 % | 50,45 % | 67 % |
| Typ | (mm) | (mm) | (mm) | (mm) | |
|---|---|---|---|---|---|
| Stormsed Vortex G | 1000 | 1230 | 556 | 1874 | 636 |
| Stormsed Vortex G | 1200 | 1775 | 800 | 2695 | 916 |
| Stormsed Vortex G | 1500 | 2768 | 1250 | 4217 | 1431 |
| Stormsed Vortex G | 1800 | 3907 | 1767 | 5952 | 2022 |
| Stormsed Vortex G | 2200 | 5719 | 2589 | 8714 | 2963 |
ACO Stormsed G-H
Bestellinformationen Stormsed Vortex G / B 125 KN
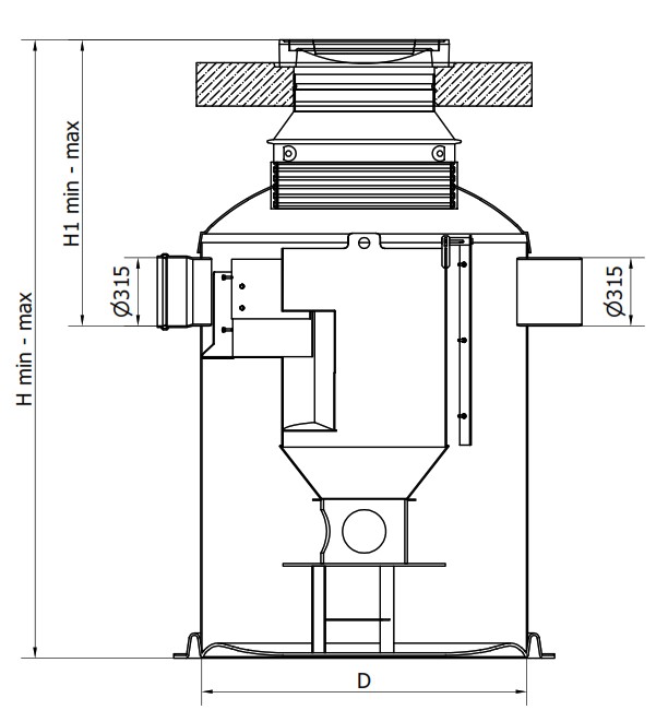
| Nenngröße | D (mm) | H min-max (mm) | H1 min-max (mm) | Behälter (kg) | Aufsatzstück (kg) | LV-Platte* (kg) | Artikel-Nr Behälter | Artikel-Nr Aufsatzstück | Technische Zeichnung (DWG) | Technische Zeichnung (PDF) |
|---|---|---|---|---|---|---|---|---|---|---|
| 4 | 1000 | 2210-3345 | 1005-2140 | 105 | 134 | - | 12830.41 | 3301.35.13 | Download | Download |
| 7 | 1200 | 2515-3650 | 1085-2220 | 175 | 134 | - | 12831.41 | 3301.35.13 | Download | Download |
| 11 | 1500 | 2580-3715 | 1185-2320 | 225 | 134 | - | 12832.41 | 3301.35.13 | Download | Download |
| 24 | 2200 | 2805-3940 | 1345-2480 | 575 | 134 | - | 12833.41 | 3301.35.13 | Download | Download |
*LV-Platte = Lastverteilerplatte
Bestellinformation Stormsed Vortex G-H / B 125 KN
| Nenngröße | D (mm) | L (mm) | H min-max (mm) | H1 min-max (mm) | Behälter (kg) | Aufsatzstück (kg) | LV-Platte (kg) | Artikel-Nr Behälter | Artikel-Nr Aufsatzstück | Technische Zeichnung (DWG) | Technische Zeichnung (PDF) |
|---|---|---|---|---|---|---|---|---|---|---|---|
| 19 | 1520 | 2720 | 2197-3332 | 1047-2182 | 270 | 134 | - | 12835.01 | 3301.35.13 | Download | Download |
| 26 | 1520 | 3650 | 2197-3332 | 1047-2182 | 310 | 134 | - | 12836.01 | 3301.35.13 | Download | Download |
| 40 | 1820 | 4610 | 2499-3634 | 1099-2234 | 465 | 134 | - | 12837.01 | 3301.35.13 | Download | Download |
| 52 | 2200 | 4890 | 2907-4042 | 1127-2262 | 920 | 134 | - | 12838.01 | 3301.35.13 | Download | Download |
| 71 | 2200 | 6630 | 2907-4042 | 1192-2327 | 1100 | 134 | - | 12839.01 | 3301.35.13 | Download | Download |
| 90 | 2402 | 7680 | 3087-4222 | 1167-2302 | 1350 | 134 | - | 12840.01 | 3301.35.13 | Download | Download |
| 124 | 2402 | 10570 | 3087-4222 | 1252-2387 | 1800 | 134 | - | 12841.01 | 3301.35.13 | Download | Download |
| 159 | 2570 | 12800 | 3277-4412 | 1277-2412 | 2450 | 134 | - | 12842.01 | 3301.35.13 | Download | Download |
*LV-Platte = Lastverteilerplatte
Bestellinformationen Stormsed Vortex G / D 400 KN
| Nenngröße | D (mm) | H min-max (mm) | H1 min-max (mm) | Behälter (kg) | Aufsatzstück (kg) | LV-Platte (kg) | Artikel-Nr Behälter | Artikel-Nr Aufsatzstück | Technische Zeichnung (DWG) | Technische Zeichnung (PDF) |
|---|---|---|---|---|---|---|---|---|---|---|
| 4 | 1000 | 2210-3345 | 1005-2140 | 105 | 218 | 636 | 12830.41 | 3301.36.10 | Download | Download |
| 7 | 1200 | 2515-3650 | 1085-2220 | 175 | 218 | 636 | 12831.41 | 3301.36.10 | Download | Download |
| 11 | 1500 | 2580-3715 | 1185-2320 | 225 | 218 | 636 | 12832.41 | 3301.36.10 | Download | Download |
| 24 | 2200 | 2805-3940 | 1345-2480 | 575 | 218 | 636 | 12833.41 | 3301.36.10 | Download | Download |
*LV-Platte = Lastverteilerplatte
Bestellinformation Stormsed Vortex G-H / D 400 KN
| Nenngröße | D (mm) | L (mm) | H min-max (mm) | H1 min-max (mm) | Behälter (kg) | Aufsatzstück (kg) | LV-Platte (kg) | Artikel-Nr Behälter | Artikel-Nr Aufsatzstück | Technische Zeichnung (DWG) | Technische Zeichnung (PDF) |
|---|---|---|---|---|---|---|---|---|---|---|---|
| 19 | 1520 | 2720 | 2197-3332 | 1047-2182 | 270 | 134 | bauseits | 12835.01 | 3301.37.10 | Download | Download |
| 26 | 1520 | 3650 | 2197-3332 | 1047-2182 | 310 | 134 | bauseits | 12836.01 | 3301.37.10 | Download | Download |
| 40 | 1820 | 4610 | 2499-3634 | 1099-2234 | 465 | 134 | bauseits | 12837.01 | 3301.37.10 | Download | Download |
| 52 | 2200 | 4890 | 2907-4042 | 1127-2262 | 920 | 134 | bauseits | 12838.01 | 3301.37.10 | Download | Download |
| 71 | 2200 | 6630 | 2907-4042 | 1192-2327 | 1100 | 134 | bauseits | 12839.01 | 3301.37.10 | Download | Download |
| 90 | 2402 | 7680 | 3087-4222 | 1167-2302 | 1350 | 134 | bauseits | 12840.01 | 3301.37.10 | Download | Download |
| 124 | 2402 | 10570 | 3087-4222 | 1252-2387 | 1800 | 134 | bauseits | 12841.01 | 3301.37.10 | Download | Download |
| 159 | 2570 | 12800 | 3277-4412 | 1277-2412 | 2450 | 134 | bauseits | 12842.01 | 3301.37.10 | Download | Download |
*LV-Platte = Lastverteilerplatte
ACO verwendet GFK (Glasfaser verstärkter Kunststoff). Ein leichtes Verbundmaterial, welches aus Glasfasern verstärkt durch Polyesterharzbinder hergestellt wird. Faserverstärkte Kunststoffe sind sogenannte Verbundstoffe aus Fasern und Harzen.
Die Fasern können aus verschiedenen Materialien wie Kohle, Aramid, Basalt oder Glas gewonnen werden. Faserverstärkte Kunstoffe werden aufgrund ihrer großartigen Materialeigenschaften in den verschiedensten Industriebereichen wie Luft- und Raumfahrt, Automobilindustrie und Schifffahrt eingesetzt.
Vorteile
Keine schweren Maschinen erforderlich, geringes LKW Beladungsgewicht
- Einsparung im Transport und auf der Baustelle
Erhöhte Zuverlässigkeit gegen Produktversagen, Verringerung der Risiken von Schäden durch falschen Einbau
- Reduzierung der Materialwartung
Konstante Materialeigenschaften während der gesamten Lebensdauer
- Reduktion der Wartungskosten
Verhinderung von Korrosion und Leckagen
- Reduktion der Wartungskosten
Langzeitverlässlichkeit, Schutz vor schwerwiegenden Schäden
- Reduzierung der Materialwartung und laufenden Reparatur-/Ersatzkosten
Für technische Ausarbeitungen rund um das von Ihnen geplante Bauvorhaben stehen Ihnen unsere Anwendungstechniker zur Verfügung.
Kontaktieren Sie uns!
Ihre Ansprechpartner
ACO Sedimentationsanlage Stormsed Vortex G
| Typ | Oberfläche (m²) | maximaler hydraulischerDurchfluss (l/s) | DB/OD Zu-und Ablauf (mm) | Maximal anschließbare Fläche (m²) | Einstieg Durchmesser (mm) |
|---|---|---|---|---|---|
| 1000 | 0,79 | 79 | 315 | Projektspezifische Bemessung empfehlenswert | 600 |
| 1200 | 1,13 | 79 | 315 | Projektspezifische Bemessung empfehlenswert | 600 |
| 1500 | 1,77 | 79 | 315 | Projektspezifische Bemessung empfehlenswert | 600 |
| 1800 | 2,54 | 79 | 315 | Projektspezifische Bemessung empfehlenswert | 600 |
| 2200 | 3,80 | 79 | 315 | Projektspezifische Bemessung empfehlenswert | 600 |
Übersicht der maximal anschließbaren Flächen zur Reinigung von AFS 63 nach Wirkungsgrad
bei Behandlung im Teil- und Vollstromverfahren nach DWA-A 102
Kategorie II Vollstrom | Kategorie III Vollstrom | Kategorie II Vollstrom | Kategorie III Vollstrom | |
| AFS 63 Belastung (kg/ha*a) | 580 | 760 | 580 | 760 |
| Wirkungsgrad (gemittelt) | 47 % | 63 % | 50,45 % | 67 % |
| Typ | (mm) | (mm) | (mm) | (mm) | |
|---|---|---|---|---|---|
| Stormsed Vortex G | 1000 | 1230 | 556 | 1874 | 636 |
| Stormsed Vortex G | 1200 | 1775 | 800 | 2695 | 916 |
| Stormsed Vortex G | 1500 | 2768 | 1250 | 4217 | 1431 |
| Stormsed Vortex G | 1800 | 3907 | 1767 | 5952 | 2022 |
| Stormsed Vortex G | 2200 | 5719 | 2589 | 8714 | 2963 |
ACO Stormsed G-H
Bestellinformationen Stormsed Vortex G / B 125 KN
| Nenngröße | D (mm) | H min-max (mm) | H1 min-max (mm) | Behälter (kg) | Aufsatzstück (kg) | LV-Platte* (kg) | Artikel-Nr Behälter | Artikel-Nr Aufsatzstück | Technische Zeichnung (DWG) | Technische Zeichnung (PDF) |
|---|---|---|---|---|---|---|---|---|---|---|
| 4 | 1000 | 2210-3345 | 1005-2140 | 105 | 134 | - | 12830.41 | 3301.35.13 | Download | Download |
| 7 | 1200 | 2515-3650 | 1085-2220 | 175 | 134 | - | 12831.41 | 3301.35.13 | Download | Download |
| 11 | 1500 | 2580-3715 | 1185-2320 | 225 | 134 | - | 12832.41 | 3301.35.13 | Download | Download |
| 24 | 2200 | 2805-3940 | 1345-2480 | 575 | 134 | - | 12833.41 | 3301.35.13 | Download | Download |
*LV-Platte = Lastverteilerplatte
Bestellinformation Stormsed Vortex G-H / B 125 KN
| Nenngröße | D (mm) | L (mm) | H min-max (mm) | H1 min-max (mm) | Behälter (kg) | Aufsatzstück (kg) | LV-Platte (kg) | Artikel-Nr Behälter | Artikel-Nr Aufsatzstück | Technische Zeichnung (DWG) | Technische Zeichnung (PDF) |
|---|---|---|---|---|---|---|---|---|---|---|---|
| 19 | 1520 | 2720 | 2197-3332 | 1047-2182 | 270 | 134 | - | 12835.01 | 3301.35.13 | Download | Download |
| 26 | 1520 | 3650 | 2197-3332 | 1047-2182 | 310 | 134 | - | 12836.01 | 3301.35.13 | Download | Download |
| 40 | 1820 | 4610 | 2499-3634 | 1099-2234 | 465 | 134 | - | 12837.01 | 3301.35.13 | Download | Download |
| 52 | 2200 | 4890 | 2907-4042 | 1127-2262 | 920 | 134 | - | 12838.01 | 3301.35.13 | Download | Download |
| 71 | 2200 | 6630 | 2907-4042 | 1192-2327 | 1100 | 134 | - | 12839.01 | 3301.35.13 | Download | Download |
| 90 | 2402 | 7680 | 3087-4222 | 1167-2302 | 1350 | 134 | - | 12840.01 | 3301.35.13 | Download | Download |
| 124 | 2402 | 10570 | 3087-4222 | 1252-2387 | 1800 | 134 | - | 12841.01 | 3301.35.13 | Download | Download |
| 159 | 2570 | 12800 | 3277-4412 | 1277-2412 | 2450 | 134 | - | 12842.01 | 3301.35.13 | Download | Download |
*LV-Platte = Lastverteilerplatte
Bestellinformationen Stormsed Vortex G / D 400 KN
| Nenngröße | D (mm) | H min-max (mm) | H1 min-max (mm) | Behälter (kg) | Aufsatzstück (kg) | LV-Platte (kg) | Artikel-Nr Behälter | Artikel-Nr Aufsatzstück | Technische Zeichnung (DWG) | Technische Zeichnung (PDF) |
|---|---|---|---|---|---|---|---|---|---|---|
| 4 | 1000 | 2210-3345 | 1005-2140 | 105 | 218 | 636 | 12830.41 | 3301.36.10 | Download | Download |
| 7 | 1200 | 2515-3650 | 1085-2220 | 175 | 218 | 636 | 12831.41 | 3301.36.10 | Download | Download |
| 11 | 1500 | 2580-3715 | 1185-2320 | 225 | 218 | 636 | 12832.41 | 3301.36.10 | Download | Download |
| 24 | 2200 | 2805-3940 | 1345-2480 | 575 | 218 | 636 | 12833.41 | 3301.36.10 | Download | Download |
*LV-Platte = Lastverteilerplatte
Bestellinformation Stormsed Vortex G-H / D 400 KN
| Nenngröße | D (mm) | L (mm) | H min-max (mm) | H1 min-max (mm) | Behälter (kg) | Aufsatzstück (kg) | LV-Platte (kg) | Artikel-Nr Behälter | Artikel-Nr Aufsatzstück | Technische Zeichnung (DWG) | Technische Zeichnung (PDF) |
|---|---|---|---|---|---|---|---|---|---|---|---|
| 19 | 1520 | 2720 | 2197-3332 | 1047-2182 | 270 | 134 | bauseits | 12835.01 | 3301.37.10 | Download | Download |
| 26 | 1520 | 3650 | 2197-3332 | 1047-2182 | 310 | 134 | bauseits | 12836.01 | 3301.37.10 | Download | Download |
| 40 | 1820 | 4610 | 2499-3634 | 1099-2234 | 465 | 134 | bauseits | 12837.01 | 3301.37.10 | Download | Download |
| 52 | 2200 | 4890 | 2907-4042 | 1127-2262 | 920 | 134 | bauseits | 12838.01 | 3301.37.10 | Download | Download |
| 71 | 2200 | 6630 | 2907-4042 | 1192-2327 | 1100 | 134 | bauseits | 12839.01 | 3301.37.10 | Download | Download |
| 90 | 2402 | 7680 | 3087-4222 | 1167-2302 | 1350 | 134 | bauseits | 12840.01 | 3301.37.10 | Download | Download |
| 124 | 2402 | 10570 | 3087-4222 | 1252-2387 | 1800 | 134 | bauseits | 12841.01 | 3301.37.10 | Download | Download |
| 159 | 2570 | 12800 | 3277-4412 | 1277-2412 | 2450 | 134 | bauseits | 12842.01 | 3301.37.10 | Download | Download |
*LV-Platte = Lastverteilerplatte
ACO verwendet GFK (Glasfaser verstärkter Kunststoff). Ein leichtes Verbundmaterial, welches aus Glasfasern verstärkt durch Polyesterharzbinder hergestellt wird. Faserverstärkte Kunststoffe sind sogenannte Verbundstoffe aus Fasern und Harzen.
Die Fasern können aus verschiedenen Materialien wie Kohle, Aramid, Basalt oder Glas gewonnen werden. Faserverstärkte Kunstoffe werden aufgrund ihrer großartigen Materialeigenschaften in den verschiedensten Industriebereichen wie Luft- und Raumfahrt, Automobilindustrie und Schifffahrt eingesetzt.
Vorteile
Keine schweren Maschinen erforderlich, geringes LKW Beladungsgewicht
- Einsparung im Transport und auf der Baustelle
Erhöhte Zuverlässigkeit gegen Produktversagen, Verringerung der Risiken von Schäden durch falschen Einbau
- Reduzierung der Materialwartung
Konstante Materialeigenschaften während der gesamten Lebensdauer
- Reduktion der Wartungskosten
Verhinderung von Korrosion und Leckagen
- Reduktion der Wartungskosten
Langzeitverlässlichkeit, Schutz vor schwerwiegenden Schäden
- Reduzierung der Materialwartung und laufenden Reparatur-/Ersatzkosten
Für technische Ausarbeitungen rund um das von Ihnen geplante Bauvorhaben stehen Ihnen unsere Anwendungstechniker zur Verfügung.
Kontaktieren Sie uns!








