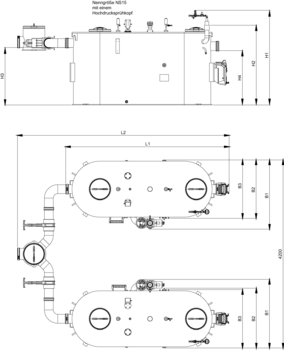
Fettabscheider LipuJet-P-OAP Ausbaustufe 3 – parallel
Produktvorteile
- Hohe Nenngrößen bis NS 60 in Parallelbauweise möglich
- Mit zwei Schaugläsern für Kontrolle von Fett und Schlamm
- Ausbaustufe OAP:
- Mit zwei Hochdrucksprühköpfen für perfekte Innenreinigung des Behälters
- Entsorgungspumpe für Höhen bis zu 18 Metern bei ca. 10 m³/h Leistung
- Steuergerät mit Voreinstellungen, die flexible an örtliche Gegebenheiten angepasst werden können
Produktinformationen
- Fettabscheider in Sondergröße: bis NS 60
- Fettabscheider gemäß ÖNORM EN 1825
- Zum Einbau in Räumen – frostfrei
- Aus Polyethylen in ovaler Bauform
- Zu- und Ablauf Ø 200 mm (NS 15 – 25) oder Ø 250 mm (NS 30)
- Zwei Schaugläser mit Wischer
- Bedienseite: rechts/links
- Ausbaustufen
- OB: Entsorgung/Reinigung über Wartungsöffnung (mit Geruchsbildung)
- OD: geruchsfreie Entsorgung über Direktabsaugung, Reinigung über Wartungsöffnung
- OA: Direktabsaugung, Programmgesteuert
- OAP: Identisch OA, Entsorgungspumpe
- OAP-Parallel: Identisch OAP, NS 40/50/60, 2 parallele Anlagen, automatisch betriebene Hochdruckpumpen
Zulauf-/Absperrschieber DN 200
Fettschichtdicken-Messgerät
Passend für
- LipuJet-P
- Oval NS 1 – 10
- Rund NS 2 – 22,5
- LipuJet-S
- Oval NS 1 – 10
- Rund NS 2 – 20
- LipuSmart-P
- Oval NS 1 – 10
Beschreibung
- Zur elektronischen Messung der Fettschicht
- Geeignet für flüssige und/oder aushärtende Fette
- Auswertegerät mit steckerfertigem Anschlusskabel, Länge: 3 m
- Mit zwei potentialfreien Wechslerkontakten zur Anzeige Vollmeldung (80%) u. der Vorwarnung des Vollzustandes (50%)
- Mit optischer Anzeige des Füllstandes
- Mit beheiztem Sondenstab zur Erhöhung der Betriebssicherheit
- Betriebsspannung: 230VAC/5 VA
- Schutzklasse: IP 54
- Leistung: ca. 12W
- Gewicht: 2,8 kg
Anschlusskasten
Passend für
- Fettabscheider
- Stärkeabscheider
- LipuLift-P-D/-DA/-DAP
Beschreibung
- Für Entsorgungsanschluss, Pendelgasleitung (bei Bedarf) und Fernbedienung
- Aus Edelstahl, Werkstoff 1.4301
- Ausführung "Aufputz"
- Frontseite glasgeperlt
- Tür abschließbar, Anschlag links
- Abmessungen B x H x T: 300 x 725 x 160 mm
- Gewicht: 10 kg
Unterputzrahmen
Zulauf-/Absperrschieber DN 250
Heizstab
Probenahmetopf DN 200
Probenahmetopf DN 200
Grobfang DN 200
Passend für
- Fettabscheider LipuJet-P
- NS 15 – 25
Beschreibung
- Zum Einbau in waagerechte Rohrleitungen DN 200 vor Abscheideranlagen
- Material: PE
- In runder Bauform, mit
- Muffendichtung (Werkstoff SBR) am Zulauf und Rohrspitzende am Ablauf
- Korb aus Edelstahl, Werkstoff 1.4571 zur Rückhaltung von Grobstoffen
- Geruchdichter Wartungsöffnung DN 450
- Gewicht: 9,9 kg
Probenahmetopf DN 250
Probenahmetopf DN 250
Grobfang DN 250
Anschlusskasten
Storzkupplung für Pendelgasleitungen
Unterputzrahmen
Anschlusskasten
Passend für
- Fettabscheider
- LipuMax-P-D/DM/DA
- LipuJet-P-OD/RD/SD/OM/OMP/RM/RMP
- LipuJet-S-OD/RD/SD/OM/OMP/RM/RMP
- Stärkeabscheider FapuMax-P-DA
- Leichtflüssigkeitsabscheider Coalisator-P
- LipuLift-P-D/-DA/-DAP
Beschreibung
- Für Entsorgungsanschluss DN 80
- Aus Edelstahl, Werkstoff 1.4301
- Ausführung "Aufputz"
- Türanschlag
- Wahlweise rechts oder links
- Tür abschließbar
- Abmessungen (Breite x Höhe x Tiefe): 370 x 330 x 250 mm
- Gewicht: 10,4 kg
Signalanlage mit GSM-Modul
Passend für
- Alle Fettabscheider
- Fettschichtdicken-Messgerät
- Vorbehälteranlage-duo
- Verfahrenstechnische Anlagen
- Fäkalien-Rückstauautomaten Quatrix-K Typ 3F
- Sinkamat-K (Unterflur) duo
- Muli-Hebeanlagen
- Pumpstationen
- Einbausets
Beschreibung
- Parametrisierbar per App (Android & iOs)
- Netzunabhängiger Alarm per 12V Bleigel-Akku
- Optische und Akustische Alarmmeldung
- Frei konfigurierbare Eingänge
- 6 digitale mit LED- Zustandsanzeige
- 1 analoger
- 1 Alarmausgang 12 V
- Weiterleitung der Alarms per SMS auf Mobiltelefone
- Zur Montage außerhalb des Ex-Bereiches
- Gehäuse: 192 x 150(mit Kabelverschraubung) x 100 mm (BxHxT)
- Schutzarzt: IP54
- Betriebsspannung: 230 V/AC 50/60 Hz
- Gewicht: 2 kg
Zulauf-/Absperrschieber DN 200
Fettschichtdicken-Messgerät
Passend für
- LipuJet-P
- Oval NS 1 – 10
- Rund NS 2 – 22,5
- LipuJet-S
- Oval NS 1 – 10
- Rund NS 2 – 20
- LipuSmart-P
- Oval NS 1 – 10
Beschreibung
- Zur elektronischen Messung der Fettschicht
- Geeignet für flüssige und/oder aushärtende Fette
- Auswertegerät mit steckerfertigem Anschlusskabel, Länge: 3 m
- Mit zwei potentialfreien Wechslerkontakten zur Anzeige Vollmeldung (80%) u. der Vorwarnung des Vollzustandes (50%)
- Mit optischer Anzeige des Füllstandes
- Mit beheiztem Sondenstab zur Erhöhung der Betriebssicherheit
- Betriebsspannung: 230VAC/5 VA
- Schutzklasse: IP 54
- Leistung: ca. 12W
- Gewicht: 2,8 kg
Anschlusskasten
Passend für
- Fettabscheider
- Stärkeabscheider
- LipuLift-P-D/-DA/-DAP
Beschreibung
- Für Entsorgungsanschluss, Pendelgasleitung (bei Bedarf) und Fernbedienung
- Aus Edelstahl, Werkstoff 1.4301
- Ausführung "Aufputz"
- Frontseite glasgeperlt
- Tür abschließbar, Anschlag links
- Abmessungen B x H x T: 300 x 725 x 160 mm
- Gewicht: 10 kg
Unterputzrahmen
Zulauf-/Absperrschieber DN 250
Heizstab
Probenahmetopf DN 200
Probenahmetopf DN 200
Grobfang DN 200
Passend für
- Fettabscheider LipuJet-P
- NS 15 – 25
Beschreibung
- Zum Einbau in waagerechte Rohrleitungen DN 200 vor Abscheideranlagen
- Material: PE
- In runder Bauform, mit
- Muffendichtung (Werkstoff SBR) am Zulauf und Rohrspitzende am Ablauf
- Korb aus Edelstahl, Werkstoff 1.4571 zur Rückhaltung von Grobstoffen
- Geruchdichter Wartungsöffnung DN 450
- Gewicht: 9,9 kg
Probenahmetopf DN 250
Probenahmetopf DN 250
Grobfang DN 250
Anschlusskasten
Storzkupplung für Pendelgasleitungen
Unterputzrahmen
Anschlusskasten
Passend für
- Fettabscheider
- LipuMax-P-D/DM/DA
- LipuJet-P-OD/RD/SD/OM/OMP/RM/RMP
- LipuJet-S-OD/RD/SD/OM/OMP/RM/RMP
- Stärkeabscheider FapuMax-P-DA
- Leichtflüssigkeitsabscheider Coalisator-P
- LipuLift-P-D/-DA/-DAP
Beschreibung
- Für Entsorgungsanschluss DN 80
- Aus Edelstahl, Werkstoff 1.4301
- Ausführung "Aufputz"
- Türanschlag
- Wahlweise rechts oder links
- Tür abschließbar
- Abmessungen (Breite x Höhe x Tiefe): 370 x 330 x 250 mm
- Gewicht: 10,4 kg
Signalanlage mit GSM-Modul
Passend für
- Alle Fettabscheider
- Fettschichtdicken-Messgerät
- Vorbehälteranlage-duo
- Verfahrenstechnische Anlagen
- Fäkalien-Rückstauautomaten Quatrix-K Typ 3F
- Sinkamat-K (Unterflur) duo
- Muli-Hebeanlagen
- Pumpstationen
- Einbausets
Beschreibung
- Parametrisierbar per App (Android & iOs)
- Netzunabhängiger Alarm per 12V Bleigel-Akku
- Optische und Akustische Alarmmeldung
- Frei konfigurierbare Eingänge
- 6 digitale mit LED- Zustandsanzeige
- 1 analoger
- 1 Alarmausgang 12 V
- Weiterleitung der Alarms per SMS auf Mobiltelefone
- Zur Montage außerhalb des Ex-Bereiches
- Gehäuse: 192 x 150(mit Kabelverschraubung) x 100 mm (BxHxT)
- Schutzarzt: IP54
- Betriebsspannung: 230 V/AC 50/60 Hz
- Gewicht: 2 kg


















