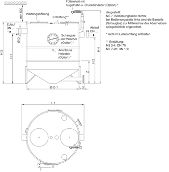
Fettabscheider LipuJet-S-RB Basisausführung
Produktvorteile
- Transport- und montagefreundlich durch Einbringung in Einzelteilen
- Optimales Einbringmaß durch Teilung in Segmente
- Keine Brandlast dank Werkstoff Edelstahl 1.4571
- Beständig gegen höhere Abwassertemperaturen
- Einfache Installation
- Ausbaustufe 2 und 3 optional mit Entsorgungspumpe
Produktinformationen
- Fettabscheideranlage gemäß ÖNORM EN 1825 und DIN 4040‑100
- Zum Einbau in Räumen – frostfrei
- Mit integriertem Schlammfang
- Bedienseite: rechts/links
- Absaug- und Entleerungsumpf mit Grundablassmuffe R 1½"
- Geruchsdichte Wartungsöffnung
- Durchmesser: 300 mm bei NS 1 – 4
- Durchmesser: 500 mm bei NS 7 – 20
Fettschichtdicken-Messgerät
Passend für
- LipuJet-P
- Oval NS 1 – 10
- Rund NS 2 – 22,5
- LipuJet-S
- Oval NS 1 – 10
- Rund NS 2 – 20
- LipuSmart-P
- Oval NS 1 – 10
Beschreibung
- Zur elektronischen Messung der Fettschicht
- Geeignet für flüssige und/oder aushärtende Fette
- Auswertegerät mit steckerfertigem Anschlusskabel, Länge: 3 m
- Mit zwei potentialfreien Wechslerkontakten zur Anzeige Vollmeldung (80%) u. der Vorwarnung des Vollzustandes (50%)
- Mit optischer Anzeige des Füllstandes
- Mit beheiztem Sondenstab zur Erhöhung der Betriebssicherheit
- Betriebsspannung: 230VAC/5 VA
- Schutzklasse: IP 54
- Leistung: ca. 12W
- Gewicht: 2,8 kg
Signalanlage mit GSM-Modul
Passend für
- Alle Fettabscheider
- Fettschichtdicken-Messgerät
- Vorbehälteranlage-duo
- Verfahrenstechnische Anlagen
- Fäkalien-Rückstauautomaten Quatrix-K Typ 3F
- Sinkamat-K (Unterflur) duo
- Muli-Hebeanlagen
- Pumpstationen
- Einbausets
Beschreibung
- Parametrisierbar per App (Android & iOs)
- Netzunabhängiger Alarm per 12V Bleigel-Akku
- Optische und Akustische Alarmmeldung
- Frei konfigurierbare Eingänge
- 6 digitale mit LED- Zustandsanzeige
- 1 analoger
- 1 Alarmausgang 12 V
- Weiterleitung der Alarms per SMS auf Mobiltelefone
- Zur Montage außerhalb des Ex-Bereiches
- Gehäuse: 192 x 150(mit Kabelverschraubung) x 100 mm (BxHxT)
- Schutzarzt: IP54
- Betriebsspannung: 230 V/AC 50/60 Hz
- Gewicht: 2 kg
Kabelverlängerung GSM
Heizstab
Fülleinheit
Anschlusskasten
Unterputzrahmen
Storzkupplung für Pendelgasleitungen
Anschlusskasten
Passend für
- Fettabscheider
- LipuMax-P-D/DM/DA
- LipuJet-P-OD/RD/SD/OM/OMP/RM/RMP
- LipuJet-S-OD/RD/SD/OM/OMP/RM/RMP
- Stärkeabscheider FapuMax-P-DA
- Leichtflüssigkeitsabscheider Coalisator-P
- LipuLift-P-D/-DA/-DAP
Beschreibung
- Für Entsorgungsanschluss DN 80
- Aus Edelstahl, Werkstoff 1.4301
- Ausführung "Aufputz"
- Türanschlag
- Wahlweise rechts oder links
- Tür abschließbar
- Abmessungen (Breite x Höhe x Tiefe): 370 x 330 x 250 mm
- Gewicht: 10,4 kg
Unterputzrahmen
Anschlusskasten
Passend für
- Fettabscheider
- Stärkeabscheider
- LipuLift-P-D/-DA/-DAP
Beschreibung
- Für Entsorgungsanschluss, Pendelgasleitung (bei Bedarf) und Fernbedienung
- Aus Edelstahl, Werkstoff 1.4301
- Ausführung "Aufputz"
- Frontseite glasgeperlt
- Tür abschließbar, Anschlag links
- Abmessungen B x H x T: 300 x 725 x 160 mm
- Gewicht: 10 kg
Unterputzrahmen
Schauglas
Probenahmetopf DN 100
Passend für
- Fettabscheider LipuJet-S/Lipator-S
- NS 1 – 4
- Stärkeabscheider FapuJet-S
- NS 0,5 – 1
- Leichtflüssigkeitsabscheider Coalisator-R/-RD
- NS 3
Beschreibung
- Aus Edelstahl, Werkstoff 1.4571
- In runder Ausführung
- Gefällesprung: 70 mm
- Zum Einbau in waagerechte Rohrleitungen DN 100 hinter Abscheideranlagen
- Mit CE-Verbinder und Tempo-Kralle
- Anschlüsse gemäß DIN EN 877
- Gewicht: 9,9 kg
Probenahmetopf DN 150
Passend für
- Fettabscheider LipuJet-S/Lipator-S
- NS 5,5 – 10
- Stärkeabscheider FapuJet-S
- NS 2
- Leichtflüssigkeitsabscheider Coalisator-R/-RD
- NS 6 – 10
Beschreibung
- Aus Edelstahl, Werkstoff 1.4571
- In runder Ausführung
- Gefällesprung: 70 mm
- Zum Einbau in waagerechte Rohrleitungen DN 150 hinter Abscheideranlagen
- Mit CE-Verbinder und Tempo-Kralle
- Anschlüsse gemäß DIN EN 877
- Gewicht: 12,2 kg
Probenahmetopf DN 200
Passend für
- Fettabscheider LipuJet-S/Lipator-S
- NS 15 – 20
- Leichtflüssigkeitsabscheider Coalisator-E
- NS 20
Beschreibung
- Aus Edelstahl, Werkstoff 1.4571
- In runder Ausführung
- Gefällesprung: 70 mm
- Zum Einbau in waagerechte Rohrleitungen DN 200 hinter Abscheideranlagen
- Mit CE-Verbinder und Tempo-Kralle
- Anschlüsse gemäß DIN EN 877
- Gewicht: 13,1 kg
Probenahmetopf DN 100
Passend für
- Fettabscheider LipuJet-S/Lipator-S
- NS 1 – 4
- Stärkeabscheider FapuJet-S
- NS 0,5 – 1
- Leichtflüssigkeitsabscheider Coalisator-R/-RD
- NS 3
Beschreibung
- Aus Edelstahl, Werkstoff 1.4571
- In runder Ausführung
- Zum Einbau in senkrechte Rohrleitungen DN 100 hinter Abscheideranlagen
- Mit CE-Verbinder und Tempo-Kralle
- Anschlüsse gemäß DIN EN 877
- Gewicht: 9,5 kg
Probenahmetopf DN 150
Passend für
- Fettabscheider LipuJet-S/Lipator-S
- NS 5,5 – 10
- Stärkeabscheider FapuJet-S
- NS 2
- Leichtflüssigkeitsabscheider Coalisator-R/-RD
- NS 6 – 10
Beschreibung
- Aus Edelstahl, Werkstoff 1.4571
- In runder Ausführung
- Zum Einbau in senkrechte Rohrleitungen DN 150 hinter Abscheideranlagen
- Mit CE-Verbinder und Tempo-Kralle
- Anschlüsse gemäß DIN EN 877
- Gewicht: 11,3 kg
Probenahmetopf DN 200
Passend für
- Fettabscheider LipuJet-S/Lipator-S
- NS 15 – 20
- Leichtflüssigkeitsabscheider Coalisator-E
- NS 20
Beschreibung
- Aus Edelstahl, Werkstoff 1.4571
- In runder Ausführung
- Zum Einbau in senkrechte Rohrleitungen DN 200 hinter Abscheideranlagen
- Mit CE-Verbinder und Tempo-Kralle
- Anschlüsse gemäß DIN EN 877
- Gewicht: 11 kg
Grobfang DN 100
Passend für
- Fettabscheider LipuJet-S/Lipator-S
- NS 1 – 4
- Stärkeabscheider FapuJet-S
- NS 0,5 – 1
Beschreibung
- Aus Edelstahl, Werkstoff 1.4571
- Runde Ausführung
- Gefällesprung: 70 mm
- Zum Einbau in waagerechte Rohrleitungen DN 100 vor Abscheideranlagen
- Mit CE-Verbinder und Tempo-Kralle
- Anschlüsse gemäß DIN EN 877
- Gewicht: 11 kg
Grobfang DN 150
Passend für
- Fettabscheider LipuJet-S/Lipator-S
- NS 5,5 – 10
- Stärkeabscheider FapuJet-S
- NS 2
Beschreibung
- Aus Edelstahl, Werkstoff 1.4571
- Runde Ausführung
- Gefällesprung: 70 mm
- Zum Einbau in waagerechte Rohrleitungen DN 150 vor Abscheideranlagen
- Mit CE-Verbinder und Tempo-Kralle
- Anschlüsse gemäß DIN EN 877
- Gewicht: 13,4 kg
Grobfang DN 200
Absperrschieber
Absperrschieber
Absperrschieber
Flanschanschlussteil
Flanschanschlussteil
Fettschichtdicken-Messgerät
Passend für
- LipuJet-P
- Oval NS 1 – 10
- Rund NS 2 – 22,5
- LipuJet-S
- Oval NS 1 – 10
- Rund NS 2 – 20
- LipuSmart-P
- Oval NS 1 – 10
Beschreibung
- Zur elektronischen Messung der Fettschicht
- Geeignet für flüssige und/oder aushärtende Fette
- Auswertegerät mit steckerfertigem Anschlusskabel, Länge: 3 m
- Mit zwei potentialfreien Wechslerkontakten zur Anzeige Vollmeldung (80%) u. der Vorwarnung des Vollzustandes (50%)
- Mit optischer Anzeige des Füllstandes
- Mit beheiztem Sondenstab zur Erhöhung der Betriebssicherheit
- Betriebsspannung: 230VAC/5 VA
- Schutzklasse: IP 54
- Leistung: ca. 12W
- Gewicht: 2,8 kg
Signalanlage mit GSM-Modul
Passend für
- Alle Fettabscheider
- Fettschichtdicken-Messgerät
- Vorbehälteranlage-duo
- Verfahrenstechnische Anlagen
- Fäkalien-Rückstauautomaten Quatrix-K Typ 3F
- Sinkamat-K (Unterflur) duo
- Muli-Hebeanlagen
- Pumpstationen
- Einbausets
Beschreibung
- Parametrisierbar per App (Android & iOs)
- Netzunabhängiger Alarm per 12V Bleigel-Akku
- Optische und Akustische Alarmmeldung
- Frei konfigurierbare Eingänge
- 6 digitale mit LED- Zustandsanzeige
- 1 analoger
- 1 Alarmausgang 12 V
- Weiterleitung der Alarms per SMS auf Mobiltelefone
- Zur Montage außerhalb des Ex-Bereiches
- Gehäuse: 192 x 150(mit Kabelverschraubung) x 100 mm (BxHxT)
- Schutzarzt: IP54
- Betriebsspannung: 230 V/AC 50/60 Hz
- Gewicht: 2 kg
Kabelverlängerung GSM
Heizstab
Fülleinheit
Anschlusskasten
Unterputzrahmen
Storzkupplung für Pendelgasleitungen
Anschlusskasten
Passend für
- Fettabscheider
- LipuMax-P-D/DM/DA
- LipuJet-P-OD/RD/SD/OM/OMP/RM/RMP
- LipuJet-S-OD/RD/SD/OM/OMP/RM/RMP
- Stärkeabscheider FapuMax-P-DA
- Leichtflüssigkeitsabscheider Coalisator-P
- LipuLift-P-D/-DA/-DAP
Beschreibung
- Für Entsorgungsanschluss DN 80
- Aus Edelstahl, Werkstoff 1.4301
- Ausführung "Aufputz"
- Türanschlag
- Wahlweise rechts oder links
- Tür abschließbar
- Abmessungen (Breite x Höhe x Tiefe): 370 x 330 x 250 mm
- Gewicht: 10,4 kg
Unterputzrahmen
Anschlusskasten
Passend für
- Fettabscheider
- Stärkeabscheider
- LipuLift-P-D/-DA/-DAP
Beschreibung
- Für Entsorgungsanschluss, Pendelgasleitung (bei Bedarf) und Fernbedienung
- Aus Edelstahl, Werkstoff 1.4301
- Ausführung "Aufputz"
- Frontseite glasgeperlt
- Tür abschließbar, Anschlag links
- Abmessungen B x H x T: 300 x 725 x 160 mm
- Gewicht: 10 kg
Unterputzrahmen
Schauglas
Probenahmetopf DN 100
Passend für
- Fettabscheider LipuJet-S/Lipator-S
- NS 1 – 4
- Stärkeabscheider FapuJet-S
- NS 0,5 – 1
- Leichtflüssigkeitsabscheider Coalisator-R/-RD
- NS 3
Beschreibung
- Aus Edelstahl, Werkstoff 1.4571
- In runder Ausführung
- Gefällesprung: 70 mm
- Zum Einbau in waagerechte Rohrleitungen DN 100 hinter Abscheideranlagen
- Mit CE-Verbinder und Tempo-Kralle
- Anschlüsse gemäß DIN EN 877
- Gewicht: 9,9 kg
Probenahmetopf DN 150
Passend für
- Fettabscheider LipuJet-S/Lipator-S
- NS 5,5 – 10
- Stärkeabscheider FapuJet-S
- NS 2
- Leichtflüssigkeitsabscheider Coalisator-R/-RD
- NS 6 – 10
Beschreibung
- Aus Edelstahl, Werkstoff 1.4571
- In runder Ausführung
- Gefällesprung: 70 mm
- Zum Einbau in waagerechte Rohrleitungen DN 150 hinter Abscheideranlagen
- Mit CE-Verbinder und Tempo-Kralle
- Anschlüsse gemäß DIN EN 877
- Gewicht: 12,2 kg
Probenahmetopf DN 200
Passend für
- Fettabscheider LipuJet-S/Lipator-S
- NS 15 – 20
- Leichtflüssigkeitsabscheider Coalisator-E
- NS 20
Beschreibung
- Aus Edelstahl, Werkstoff 1.4571
- In runder Ausführung
- Gefällesprung: 70 mm
- Zum Einbau in waagerechte Rohrleitungen DN 200 hinter Abscheideranlagen
- Mit CE-Verbinder und Tempo-Kralle
- Anschlüsse gemäß DIN EN 877
- Gewicht: 13,1 kg
Probenahmetopf DN 100
Passend für
- Fettabscheider LipuJet-S/Lipator-S
- NS 1 – 4
- Stärkeabscheider FapuJet-S
- NS 0,5 – 1
- Leichtflüssigkeitsabscheider Coalisator-R/-RD
- NS 3
Beschreibung
- Aus Edelstahl, Werkstoff 1.4571
- In runder Ausführung
- Zum Einbau in senkrechte Rohrleitungen DN 100 hinter Abscheideranlagen
- Mit CE-Verbinder und Tempo-Kralle
- Anschlüsse gemäß DIN EN 877
- Gewicht: 9,5 kg
Probenahmetopf DN 150
Passend für
- Fettabscheider LipuJet-S/Lipator-S
- NS 5,5 – 10
- Stärkeabscheider FapuJet-S
- NS 2
- Leichtflüssigkeitsabscheider Coalisator-R/-RD
- NS 6 – 10
Beschreibung
- Aus Edelstahl, Werkstoff 1.4571
- In runder Ausführung
- Zum Einbau in senkrechte Rohrleitungen DN 150 hinter Abscheideranlagen
- Mit CE-Verbinder und Tempo-Kralle
- Anschlüsse gemäß DIN EN 877
- Gewicht: 11,3 kg
Probenahmetopf DN 200
Passend für
- Fettabscheider LipuJet-S/Lipator-S
- NS 15 – 20
- Leichtflüssigkeitsabscheider Coalisator-E
- NS 20
Beschreibung
- Aus Edelstahl, Werkstoff 1.4571
- In runder Ausführung
- Zum Einbau in senkrechte Rohrleitungen DN 200 hinter Abscheideranlagen
- Mit CE-Verbinder und Tempo-Kralle
- Anschlüsse gemäß DIN EN 877
- Gewicht: 11 kg
Grobfang DN 100
Passend für
- Fettabscheider LipuJet-S/Lipator-S
- NS 1 – 4
- Stärkeabscheider FapuJet-S
- NS 0,5 – 1
Beschreibung
- Aus Edelstahl, Werkstoff 1.4571
- Runde Ausführung
- Gefällesprung: 70 mm
- Zum Einbau in waagerechte Rohrleitungen DN 100 vor Abscheideranlagen
- Mit CE-Verbinder und Tempo-Kralle
- Anschlüsse gemäß DIN EN 877
- Gewicht: 11 kg
Grobfang DN 150
Passend für
- Fettabscheider LipuJet-S/Lipator-S
- NS 5,5 – 10
- Stärkeabscheider FapuJet-S
- NS 2
Beschreibung
- Aus Edelstahl, Werkstoff 1.4571
- Runde Ausführung
- Gefällesprung: 70 mm
- Zum Einbau in waagerechte Rohrleitungen DN 150 vor Abscheideranlagen
- Mit CE-Verbinder und Tempo-Kralle
- Anschlüsse gemäß DIN EN 877
- Gewicht: 13,4 kg
Grobfang DN 200
Absperrschieber
Absperrschieber
Absperrschieber
Flanschanschlussteil
Flanschanschlussteil

















